2008'03.09.Sun
イベントてんこ盛りです
3月に入って穏やかな晴天
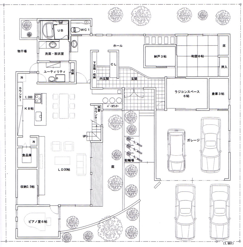
が続きましたが、その陽気に誘われて大阪へピアノとキッチンを見に行くことになりました。どちらも要予約のイベントだったのですが、まずはピアノを見に行くことに。嫁さんのたっての希望はピアノ室を設けたいということ。部屋だけならともかく、中身も必要ですから見に行かざるを得ません。今使っているのはCASIOのPrivia PX-800という電子ピアノ。量販店で売っている1〜2万円のキーボードに比べたら遙かにタッチや音などもいいのですが、やはり本物が弾きたいという様子。せっかくならグランドピアノを・・・とのことで今日の見学会になりました。
当初はピアノ部屋を設けるのだったら防音にするんだし、ホームシアターでも付けてみようかと10帖程度の広さを見込んでいましたが、その後のプラン改定によりホームシアターを廃し、6帖程度の広さを計画することとなりました。さすがにコンサートピアノは置けませんので、個人宅でも設置(&購入)可能なピアノとなるとヤマハのCシリーズが妥当なラインだということがわかりました。僕は子守中心でしたが、嫁さんはいろいろ試弾していました。その中でも比較的よさげだというのがC3というピアノ。

3月に入って穏やかな晴天
が続きましたが、その陽気に誘われて大阪へピアノとキッチンを見に行くことになりました。どちらも要予約のイベントだったのですが、まずはピアノを見に行くことに。嫁さんのたっての希望はピアノ室を設けたいということ。部屋だけならともかく、中身も必要ですから見に行かざるを得ません。今使っているのはCASIOのPrivia PX-800という電子ピアノ。量販店で売っている1〜2万円のキーボードに比べたら遙かにタッチや音などもいいのですが、やはり本物が弾きたいという様子。せっかくならグランドピアノを・・・とのことで今日の見学会になりました。当初はピアノ部屋を設けるのだったら防音にするんだし、ホームシアターでも付けてみようかと10帖程度の広さを見込んでいましたが、その後のプラン改定によりホームシアターを廃し、6帖程度の広さを計画することとなりました。さすがにコンサートピアノは置けませんので、個人宅でも設置(&購入)可能なピアノとなるとヤマハのCシリーズが妥当なラインだということがわかりました。僕は子守中心でしたが、嫁さんはいろいろ試弾していました。その中でも比較的よさげだというのがC3というピアノ。
YAMAHA C3。こんなの買って大丈夫?
しかし値段が・・・orz。まぁ、すぐ買うわけでもないのでとりあえず検討することにしておみやげだけもらって帰りました(笑)PR
2008'03.04.Tue
いよいよ最終提示です
G社さんの最終提示の日です。2月4日にもプレゼンしていただいたのですが、価格がやや折り合わないため、担当さんが減額調整
などをして改めて提示してくれることになっていました。
持ってきていただいたプランは、今までのものとほとんど変更がありません。規模的にはほとんど変わらないといった感じです。しかし、微妙なところで減額調整がなされています。たとえば玄関ドア。今までは【親親ドア】でしたが【親子ドア】に変わっていたりします。そのほか、家具に関してもCASSINAからHUKLAに変更されていたりなど、インテリア面でも減額変更されています。エクステリアでは一部の木格子が省かれていたりするなど若干の変更にとどまりました。
結果、約10%ほどのコストダウン
になりました。しかし、絶対額では決して安くはありません。ただ、家というのは価格だけで決まるものではありません。G社のプランには捨てがたい魅力を感じているので、しばらく保留することにさせていただきました・・・う〜ん、悩みはつきません
G社さんの最終提示の日です。2月4日にもプレゼンしていただいたのですが、価格がやや折り合わないため、担当さんが減額調整
などをして改めて提示してくれることになっていました。持ってきていただいたプランは、今までのものとほとんど変更がありません。規模的にはほとんど変わらないといった感じです。しかし、微妙なところで減額調整がなされています。たとえば玄関ドア。今までは【親親ドア】でしたが【親子ドア】に変わっていたりします。そのほか、家具に関してもCASSINAからHUKLAに変更されていたりなど、インテリア面でも減額変更されています。エクステリアでは一部の木格子が省かれていたりするなど若干の変更にとどまりました。
結果、約10%ほどのコストダウン
になりました。しかし、絶対額では決して安くはありません。ただ、家というのは価格だけで決まるものではありません。G社のプランには捨てがたい魅力を感じているので、しばらく保留することにさせていただきました・・・う〜ん、悩みはつきません
2008'03.02.Sun
職場兼用の住居でした
月が変わって最初の日曜日、比較的穏やかな晴天
に恵まれたので自宅から車
で20分くらいのところで開催されたオープンハウスを見に行ってきました。ここは自宅兼接骨院診療所という造りで、1Fは診療所
、2Fか居住区
となった建物です。東側に当たる正面ファサードはシンプルモダンな箱といった感じ。壁は基本的に淡いチョコレート色で吹き付けられ、落ち着いた印象です。診療所の中は非常に明るいの一言に尽きます。複数のベッドが北側の診療室に置かれているのですが、安定した光が差し込む形になっておりゆったりと診療が受けられそうです。南側はトイレや待合いとなっていて、これまた明るく時間を過ごすことができます。
住居用の玄関は1F西側に設けられ、玄関ホールは吹き抜け。すぐに階段があり2Fのリビングへと続きます。2Fリビングも非常に明るく、南の光がどんどん入ってきます。夏は多少暑いかも知れませんが、冬はかなり快適になるはずです。ガラスはエコガラスが使用され、外側から見ると淡いハーフミラー調です。プライバシーも保てるような造りになっています。ご夫婦二人だけのお住まいということで、2Fはリビング以外に寝室とサニタリー・浴室しかありません。2Fホールがちょっとした読書や趣味の場所という感じのようです。浴室は3in1で構成されています。日本人にはなじみにくい構成かと思っていたのですが、モダンな家では結構採用されているようですね。
途中、建築家のN先生に直接案内していただくことができ、約1時間ほど堪能させていただきました。細かな点にこだわった素敵なお家でした。またの機会が有れば是非オープンハウスに参加してみたいと思います
月が変わって最初の日曜日、比較的穏やかな晴天
に恵まれたので自宅から車
で20分くらいのところで開催されたオープンハウスを見に行ってきました。ここは自宅兼接骨院診療所という造りで、1Fは診療所
、2Fか居住区
となった建物です。東側に当たる正面ファサードはシンプルモダンな箱といった感じ。壁は基本的に淡いチョコレート色で吹き付けられ、落ち着いた印象です。診療所の中は非常に明るいの一言に尽きます。複数のベッドが北側の診療室に置かれているのですが、安定した光が差し込む形になっておりゆったりと診療が受けられそうです。南側はトイレや待合いとなっていて、これまた明るく時間を過ごすことができます。住居用の玄関は1F西側に設けられ、玄関ホールは吹き抜け。すぐに階段があり2Fのリビングへと続きます。2Fリビングも非常に明るく、南の光がどんどん入ってきます。夏は多少暑いかも知れませんが、冬はかなり快適になるはずです。ガラスはエコガラスが使用され、外側から見ると淡いハーフミラー調です。プライバシーも保てるような造りになっています。ご夫婦二人だけのお住まいということで、2Fはリビング以外に寝室とサニタリー・浴室しかありません。2Fホールがちょっとした読書や趣味の場所という感じのようです。浴室は3in1で構成されています。日本人にはなじみにくい構成かと思っていたのですが、モダンな家では結構採用されているようですね。
途中、建築家のN先生に直接案内していただくことができ、約1時間ほど堪能させていただきました。細かな点にこだわった素敵なお家でした。またの機会が有れば是非オープンハウスに参加してみたいと思います

2008'02.27.Wed
2008'02.25.Mon
諸経費も入ってきました
前回、諸経費などの見積もりがあがっていなかったので一緒に計上してもらうことになったプレゼンです。今回は概算ですが諸経費
なども含めてもらっています。価格はずいぶん値引いている感じです。一部家具なども含んだ価格ですが、結構安くあがってきている感じです。
前回話題にあがっていた、【カタログへの掲載
】などで本社からの支援があるとのことでしたが、これがおおよそ10%程度の値引き分になっています。掲載されるとなるとどうも県下初らしいのですが、それにしてもこの値引き
はいったい・・・。確かにC社さんのこのカタログ、普通のカタログではありません。デザイナーズハウスを中心とした掲載で、装丁もしっかりしており今見ても非常に勉強になる家がたくさん掲載されています。規模の大小だけではなく【いかに凝ってみたか】がポイントになるようです。このカタログに載せてみたいなぁ・・・と思う気持ちがある一方、先ほどの値引き・・・。HMはこのあたりの戦略がとても上手なようです(笑)
G社に比べれば価格的には相当お得な感じがしましたし、カタログ云々・・も僕を惑わせます。実際に建っているお家も見てください、との申し出があり機会が有れば見てみることにしました。今後G社とも併せて考えることにし、返事は後日ということにしました。ふぅ
前回、諸経費などの見積もりがあがっていなかったので一緒に計上してもらうことになったプレゼンです。今回は概算ですが諸経費
なども含めてもらっています。価格はずいぶん値引いている感じです。一部家具なども含んだ価格ですが、結構安くあがってきている感じです。前回話題にあがっていた、【カタログへの掲載
】などで本社からの支援があるとのことでしたが、これがおおよそ10%程度の値引き分になっています。掲載されるとなるとどうも県下初らしいのですが、それにしてもこの値引き
はいったい・・・。確かにC社さんのこのカタログ、普通のカタログではありません。デザイナーズハウスを中心とした掲載で、装丁もしっかりしており今見ても非常に勉強になる家がたくさん掲載されています。規模の大小だけではなく【いかに凝ってみたか】がポイントになるようです。このカタログに載せてみたいなぁ・・・と思う気持ちがある一方、先ほどの値引き・・・。HMはこのあたりの戦略がとても上手なようです(笑)G社に比べれば価格的には相当お得な感じがしましたし、カタログ云々・・も僕を惑わせます。実際に建っているお家も見てください、との申し出があり機会が有れば見てみることにしました。今後G社とも併せて考えることにし、返事は後日ということにしました。ふぅ

カレンダー
リンク
カテゴリー
最新コメント
[07/05 ゆめ]
[04/18 さっさー]
[04/17 CG render blog]
[12/22 スピーカー]
[12/21 magazinn55]
最新記事
最新トラックバック
プロフィール
HN:
さっさー
性別:
男性
ブログ内検索
アーカイブ
カウンター

