2007'12.27.Thu
今年最後の打ち合わせです
今年最後の打ち合わせとなったのはC社。予算的にまだ正式な見積もり
は出ていないものの、こういった仕様で建築を考えているという感じのプレゼンでした。基本的な間取りの変更はなく、細かな点で説明があったのと、インテリアやキッチン・システムバス
などの仕様の説明などを受けました。キッチンやシステムバスにはそれなりのこだわりがあり、ここだけは譲れないという絶対防衛ラインが夫婦間で成立していますので(笑)C社さんにはその旨お伝えし、見積もりに組み込んでもらうこととしました。
今年最後の打ち合わせとなったのはC社。予算的にまだ正式な見積もり
は出ていないものの、こういった仕様で建築を考えているという感じのプレゼンでした。基本的な間取りの変更はなく、細かな点で説明があったのと、インテリアやキッチン・システムバス
などの仕様の説明などを受けました。キッチンやシステムバスにはそれなりのこだわりがあり、ここだけは譲れないという絶対防衛ラインが夫婦間で成立していますので(笑)C社さんにはその旨お伝えし、見積もりに組み込んでもらうこととしました。クリナップのキッチン、S.S.
ちなみにキッチンはクリナップの【S.S.】、システムバスはINAXの【j-bath】を検討することとしています。キッチンのこだわりは嫁さん、お風呂は僕のこだわりです。価格的な面で釣り合えばお風呂はシステムバスではなく、在来工法でも良いかと思っていたのですが、j-bathだとシステムバスっぽくない感じがするのでとりあえずこれを選択しています。ただし値段は・・・(^^;; まぁ、夢は大きくてもいいってことで(笑)PR
2007'12.26.Wed
自由度が・・・
各HMさんのプランが出そろいつつある中、T川所長
からプランができあがったとの連絡がありました。26日にお会いすることを約束し、正午過ぎ
に事務所へと出向きました。
いつものように3階の資料室へ通していただいたのですが、なぜかT建設の専務取締役が同席。【ハメられた〜】(笑)と思いながらお話を聞くことに。
大きなテーブルに提示されたのはなんと2つのプランでした。そのどちらをとっても非常によく考えて作り込んであります。プラン1はLDKを大きくとったボリューム感の大きいもの、プラン2はLDKは若干小さいものの、中庭を取り込む形で広さを表現しているプランでした。どちらのプランも僕たちの要望をほぼかなえているすばらしいプランでした。
「設計事務所ですのでHMさんのように日照時間
の計算や豪華なケースで綴られた3Dモデリングなどの小技を色々使ってプレゼンすることはできませんが、施主さんの希望通りの家を建てられるということに関していえば、決してHMさんに負けているとは思いません
」
「普通はもう少しラフなプランを提示してから施主さんと細かく詰めていくのですが、さっさーさんの場合は要望書
が相当細かく作ってあったので、かなり参考になりました。ただ、要望の優先順位
がわかりませんので、そのあたりは今後詰めていきたいと考えています」
こんなところでも要望書
が役に立つとは。ほめてもらってうれしいです
各HMさんのプランが出そろいつつある中、T川所長
からプランができあがったとの連絡がありました。26日にお会いすることを約束し、正午過ぎ
に事務所へと出向きました。いつものように3階の資料室へ通していただいたのですが、なぜかT建設の専務取締役が同席。【ハメられた〜】(笑)と思いながらお話を聞くことに。
大きなテーブルに提示されたのはなんと2つのプランでした。そのどちらをとっても非常によく考えて作り込んであります。プラン1はLDKを大きくとったボリューム感の大きいもの、プラン2はLDKは若干小さいものの、中庭を取り込む形で広さを表現しているプランでした。どちらのプランも僕たちの要望をほぼかなえているすばらしいプランでした。
すごいよ〜っ!
「設計事務所ですのでHMさんのように日照時間
の計算や豪華なケースで綴られた3Dモデリングなどの小技を色々使ってプレゼンすることはできませんが、施主さんの希望通りの家を建てられるということに関していえば、決してHMさんに負けているとは思いません
」「普通はもう少しラフなプランを提示してから施主さんと細かく詰めていくのですが、さっさーさんの場合は要望書
が相当細かく作ってあったので、かなり参考になりました。ただ、要望の優先順位
がわかりませんので、そのあたりは今後詰めていきたいと考えています」こんなところでも要望書
が役に立つとは。ほめてもらってうれしいです
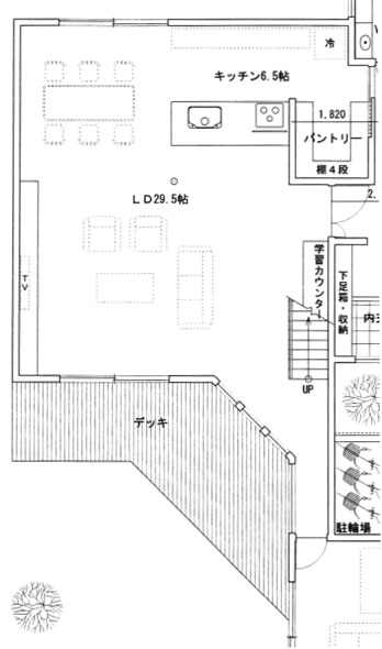
リビング収納のついたプラン2
それにしても自由度が高いとこんな感じになるのか・・・と驚きました。HMさんの設計とは違い、柱や壁などの構造に自社規格がないのでほぼ完全な自由設計ということになります。何もないゼロの状態にこうした建物を設計できるということに驚くとともに、HM所属の方もふくめ、建築士さんってすごいんだなぁと感心しました。2007'12.24.Mon
だいぶ細かくなってきたので
クリスマスイブの今日はA社・G社のダブルヘッダーです。A社はほぼプランも出そろい、後は見積もり
という段階。所長さんも参加されかなり気合いが入っています。いつもの通り簡単なプレゼンを受け、見積書が提出されました。価格的
には・・・う〜ん、こんな感じかなぁ。高すぎるとは思いませんが、プランの割には割高かも・・・。一応、モデルハウスとしての一時的に使用させることでの割引
なども入っているのですが、なんか割り引いたという感じがしないのでインパクト的にはイマイチです
。
見積書の有効期限が来年1月末までと決められたので、この見積もりで家を建てる際には1ヶ月ちょっとの猶予しかありません。う〜ん、高額な買い物なのでもうちょっと余裕を与えて欲しいなぁ・・・。
続いてG社。市の中心部にある高層ビル
のほぼ最上階に位置するロケーションです。営業を兼ねている店長さんと設計さん、インテリアコーディネーターのお三方が相手です。いつものように要望書を提出し、細かく説明していきます。ここの事務所はショールームを兼ねているので子供
はそっちの方が興味ある様子。仕方ないので夫婦でかわりばんこに子供のお守りをしながら話を進めていきます。G社の方たちはみな柔らかい感じの方たちばかりで、なかなか好印象です
。自分たちの意見を主張するというよりは【聞き上手
】という感じです。もしかするといいプランが出てくるかも・・・と思わせる内容でした。2時間ほどでヒアリングは終了。約3週間後にプランを提示していただけることになりました。
クリスマスイブの今日はA社・G社のダブルヘッダーです。A社はほぼプランも出そろい、後は見積もり
という段階。所長さんも参加されかなり気合いが入っています。いつもの通り簡単なプレゼンを受け、見積書が提出されました。価格的
には・・・う〜ん、こんな感じかなぁ。高すぎるとは思いませんが、プランの割には割高かも・・・。一応、モデルハウスとしての一時的に使用させることでの割引
なども入っているのですが、なんか割り引いたという感じがしないのでインパクト的にはイマイチです
。見積書の有効期限が来年1月末までと決められたので、この見積もりで家を建てる際には1ヶ月ちょっとの猶予しかありません。う〜ん、高額な買い物なのでもうちょっと余裕を与えて欲しいなぁ・・・。
続いてG社。市の中心部にある高層ビル
のほぼ最上階に位置するロケーションです。営業を兼ねている店長さんと設計さん、インテリアコーディネーターのお三方が相手です。いつものように要望書を提出し、細かく説明していきます。ここの事務所はショールームを兼ねているので子供
はそっちの方が興味ある様子。仕方ないので夫婦でかわりばんこに子供のお守りをしながら話を進めていきます。G社の方たちはみな柔らかい感じの方たちばかりで、なかなか好印象です
。自分たちの意見を主張するというよりは【聞き上手
】という感じです。もしかするといいプランが出てくるかも・・・と思わせる内容でした。2時間ほどでヒアリングは終了。約3週間後にプランを提示していただけることになりました。2007'12.23.Sun
ショールーム三昧
まだビルダーも決まっていないのですが、設備関連のショールームを見に行くことにしました。今回の主な目的はキッチンです。LDKの司令塔を目指す嫁さんの目は真剣です(^^;; 今回は運転手+風邪気味で体調はすぐれなかったのですが、致し方ありません。子供のお守りというおまけまでついてグロッキー気味です・・。ざっと見て回った感想を以下に。
INAX
最初に入ったショールームです。トイレ・風呂・キッチン以外にも外壁など陶器関連のものが多数展示されています。入ってすぐに3in1の"Sweetroom"が。展示場のやつはちょっとこってりしている感じであまり好みではありませんでした。設置する余裕もないのですが・・・
嫁さんのキッチンの評価は今ひとつ。ただ、トイレと風呂の評価は高かったです。僕は風呂しか見なかったのですが、j-bathが気に入りました。UBですが床もタイルになってます。在来工法とほとんど変わらないくらいの値段でしたが、やっぱりお風呂の床はタイルだよね〜と思いつつ検討の対象にしました

まだビルダーも決まっていないのですが、設備関連のショールームを見に行くことにしました。今回の主な目的はキッチンです。LDKの司令塔を目指す嫁さんの目は真剣です(^^;; 今回は運転手+風邪気味で体調はすぐれなかったのですが、致し方ありません。子供のお守りというおまけまでついてグロッキー気味です・・。ざっと見て回った感想を以下に。
INAX
最初に入ったショールームです。トイレ・風呂・キッチン以外にも外壁など陶器関連のものが多数展示されています。入ってすぐに3in1の"Sweetroom"が。展示場のやつはちょっとこってりしている感じであまり好みではありませんでした。設置する余裕もないのですが・・・
嫁さんのキッチンの評価は今ひとつ。ただ、トイレと風呂の評価は高かったです。僕は風呂しか見なかったのですが、j-bathが気に入りました。UBですが床もタイルになってます。在来工法とほとんど変わらないくらいの値段でしたが、やっぱりお風呂の床はタイルだよね〜と思いつつ検討の対象にしました
2007'12.22.Sat
何ともすごいプランが出てきました
今日はB社のファーストプラン提示の日。ずいぶん時間がかかりましたが、こちらも期限を設けていないので特に気にしてはいませんでした。で、久しぶりの営業さんと設計さん。早速プランが提示されました。
なんと、家が傾いています。正確にいうと【家が道路に対して斜めに】建っています。建設予定地は南面道路を抱えるほぼ正方形の土地なのですが、正確な南ではありません。32方位では南南東と南の間を南微東というのですが、普通に建てるとだいたいこの方向が我が家の【南】になるわけです。今回、B社が提示してきたプランはまさに南微西方向に家を振り、正確に【南】を捉えたプランになっています。
基本的にはコの字型の家なのですが、斜めに振っていることで3Dパースで見るとずいぶん大きく見えます。その代わり、敷地を部屋には取っていないのでLDKや玄関はやや狭め。プラン的には非常に面白い
のですが、LDKの広さを重視したい僕たちにとってはちょっと不満点
も残ります。おそらくこの建て方だとこれ以上の広さを望むのは無理だろうなぁと思いつつも念のため注文しておくことに。外壁も特徴的な軽量コンクリート板で、望む物とは少し違います。概算見積もり
も持って来ていただいたので、検討材料とすることにし打ち合わせを終えました。
メーカー毎に違うプランが出てきて面白いのですが、まさかこんな大胆なプランが出てくるとは思いもよらず、意表を突かれた形となりました・・・。
今日はB社のファーストプラン提示の日。ずいぶん時間がかかりましたが、こちらも期限を設けていないので特に気にしてはいませんでした。で、久しぶりの営業さんと設計さん。早速プランが提示されました。
うぉ〜、なんじゃこりゃ〜

なんと、家が傾いています。正確にいうと【家が道路に対して斜めに】建っています。建設予定地は南面道路を抱えるほぼ正方形の土地なのですが、正確な南ではありません。32方位では南南東と南の間を南微東というのですが、普通に建てるとだいたいこの方向が我が家の【南】になるわけです。今回、B社が提示してきたプランはまさに南微西方向に家を振り、正確に【南】を捉えたプランになっています。
基本的にはコの字型の家なのですが、斜めに振っていることで3Dパースで見るとずいぶん大きく見えます。その代わり、敷地を部屋には取っていないのでLDKや玄関はやや狭め。プラン的には非常に面白い
のですが、LDKの広さを重視したい僕たちにとってはちょっと不満点
も残ります。おそらくこの建て方だとこれ以上の広さを望むのは無理だろうなぁと思いつつも念のため注文しておくことに。外壁も特徴的な軽量コンクリート板で、望む物とは少し違います。概算見積もり
も持って来ていただいたので、検討材料とすることにし打ち合わせを終えました。メーカー毎に違うプランが出てきて面白いのですが、まさかこんな大胆なプランが出てくるとは思いもよらず、意表を突かれた形となりました・・・。
カレンダー
リンク
カテゴリー
最新コメント
[07/05 ゆめ]
[04/18 さっさー]
[04/17 CG render blog]
[12/22 スピーカー]
[12/21 magazinn55]
最新記事
最新トラックバック
プロフィール
HN:
さっさー
性別:
男性
ブログ内検索
アーカイブ
カウンター

