2007'12.09.Sun
F社のファーストプレゼンは・・・
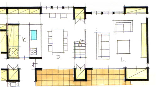
最大手F社のファーストプレゼンが提示される日です。どんな物になるのか期待大です。約束の時間に営業のNKSさんと設計担当のMSDさんがお見えになりました。MSDさんはいかにも建築士らしく、普通のスーツとは違う、少しおしゃれなスーツを着て登場です。美術系に通じる何かがあるのでしょうか・・?
さて、NKSさんとMSDさんの両名でプレゼンが開始されました。F社は木造と鉄骨の両方を手がける会社ですが、今回は鉄骨系でプランを組みましたとのことでした。僕は構造自体にはあまり興味がないのでどちらでも良かったんですけどね。プレゼンしていただく資料は、これまた豪華なハードケースに収められています。A3版をクリップして作られた資料は見応えもあります。
実際に説明を受けてみると・・・。
。2台分のビルトインガレージ
も狭いですが装備。他社さんとは違い玄関までのアプローチも凝っています。アプローチ途中には駐輪場があり、緩やかに蛇行し、さらには中庭の一部を覗きながら玄関へと向かう工夫がなされてます。かなり贅沢そうな作りです。LDKもいい感じに仕上がっています。
最大手F社のファーストプレゼンが提示される日です。どんな物になるのか期待大です。約束の時間に営業のNKSさんと設計担当のMSDさんがお見えになりました。MSDさんはいかにも建築士らしく、普通のスーツとは違う、少しおしゃれなスーツを着て登場です。美術系に通じる何かがあるのでしょうか・・?
さて、NKSさんとMSDさんの両名でプレゼンが開始されました。F社は木造と鉄骨の両方を手がける会社ですが、今回は鉄骨系でプランを組みましたとのことでした。僕は構造自体にはあまり興味がないのでどちらでも良かったんですけどね。プレゼンしていただく資料は、これまた豪華なハードケースに収められています。A3版をクリップして作られた資料は見応えもあります。
実際に説明を受けてみると・・・。
ほほぉ〜
なかなかよさげな感じです
。2台分のビルトインガレージ
も狭いですが装備。他社さんとは違い玄関までのアプローチも凝っています。アプローチ途中には駐輪場があり、緩やかに蛇行し、さらには中庭の一部を覗きながら玄関へと向かう工夫がなされてます。かなり贅沢そうな作りです。LDKもいい感じに仕上がっています。PR
2007'12.08.Sat
3回目のプレゼン
プレゼンも3回目くらいになると、だいたいの要望が取り入れられるようになっていて修正要望箇所もだんだん細かくなっています。ただ、このくらいの時期になってくると「あそこをこうした方がよさそう」とか「ここはもう少し広めに」みたいな新たな要望も出てきます。
前回の要望ではガレージをカーポートタイプではなく、ビルトインガレージにして欲しいとのことだったのですが、相変わらずカーポートでした
ここは再度変更を検討してもらいます。ほかにもキッチンからリビング階段が見えにくくなっていたので、階段の登り口の位置を若干変更。トイレ
は洋式便器だけになりました。
洗濯動線に関しても若干の変更をお願いし、今回も終了。次回の打ち合わせに関してもA社さんはかなり気合いが入っているのか、数日先を指定してきます。
「ウチはスピード
も重要な売りだと考えていますので」
とはNGCさん。確かにスピードも大事なんですが、今の僕たちには早すぎます(笑) とりあえず10日間ほど後で打ち合わせることとなりお開きとなりました
プレゼンも3回目くらいになると、だいたいの要望が取り入れられるようになっていて修正要望箇所もだんだん細かくなっています。ただ、このくらいの時期になってくると「あそこをこうした方がよさそう」とか「ここはもう少し広めに」みたいな新たな要望も出てきます。
前回の要望ではガレージをカーポートタイプではなく、ビルトインガレージにして欲しいとのことだったのですが、相変わらずカーポートでした
ここは再度変更を検討してもらいます。ほかにもキッチンからリビング階段が見えにくくなっていたので、階段の登り口の位置を若干変更。トイレ
は洋式便器だけになりました。洗濯動線に関しても若干の変更をお願いし、今回も終了。次回の打ち合わせに関してもA社さんはかなり気合いが入っているのか、数日先を指定してきます。
「ウチはスピード
も重要な売りだと考えていますので」とはNGCさん。確かにスピードも大事なんですが、今の僕たちには早すぎます(笑) とりあえず10日間ほど後で打ち合わせることとなりお開きとなりました

2007'12.03.Mon
大丈夫ですか?
印象の良かった先日のファーストプレゼンテーションから約1週間、第2回目のプレゼンがありました。ところがお見えになった方は営業担当さんとインテリアコーディネーターの方の2名
のみ。はて設計さんは?
「実は風邪で体調を崩しておりまして・・・
」
とのこと。無理していただかなくても良かったのに本当に申し訳ないです。というわけで今回のプレゼンは主に営業のNKさんから。
まず、前回指摘のあったLDKの見通しに関してはスリットウォールではなく、ガラスウォールを用いることで視認性
を高めたとのこと。これに関しては想像が難しいのですが、持ってきていただいた参考リーフレット
などでだいたいのイメージはつかめました。
次に離れっぽくして欲しかった和室
について。これについてはメインの廊下と平行する石畳風廊下を設けることで、離れっぽい印象にしてみたとのこと。予想図がイラストで示されてあり、感じは何となくつかめました
。
何となくイメージがつかみやすくなってきているのは慣れてきたからでしょうか? ただ、嫁さんはどうも家事動線に不満がある様子。というのも洗濯機は1階
に設置されているのに、物干し場が2階
のバルコニーのみだという点。確かに、重要なポイントなんでしょうが、浮かれている僕にはもう一つピンときません。が、とりあえず要望をお伝えすることに。
今回は、設計さんが欠席されていることもあり比較的短時間で打ち合わせは終了。しかし、C社さんはいつやってきても自社の構造体を必ずと言っていいほど宣伝されていきます。「僕にはこれくらいしかプレゼンできませんので・・・」といわれるのですが、その言い方がまた控えめでついつい面白く聞いてしまいます。
なんだかんだで次回は洗濯物に関して何らかの変更をお願いしたプランを聞くことになりました。果てさてどうなるのやら・・・。
印象の良かった先日のファーストプレゼンテーションから約1週間、第2回目のプレゼンがありました。ところがお見えになった方は営業担当さんとインテリアコーディネーターの方の2名
のみ。はて設計さんは?「実は風邪で体調を崩しておりまして・・・
」とのこと。無理していただかなくても良かったのに本当に申し訳ないです。というわけで今回のプレゼンは主に営業のNKさんから。
まず、前回指摘のあったLDKの見通しに関してはスリットウォールではなく、ガラスウォールを用いることで視認性
を高めたとのこと。これに関しては想像が難しいのですが、持ってきていただいた参考リーフレット
などでだいたいのイメージはつかめました。次に離れっぽくして欲しかった和室
について。これについてはメインの廊下と平行する石畳風廊下を設けることで、離れっぽい印象にしてみたとのこと。予想図がイラストで示されてあり、感じは何となくつかめました
。何となくイメージがつかみやすくなってきているのは慣れてきたからでしょうか? ただ、嫁さんはどうも家事動線に不満がある様子。というのも洗濯機は1階
に設置されているのに、物干し場が2階
のバルコニーのみだという点。確かに、重要なポイントなんでしょうが、浮かれている僕にはもう一つピンときません。が、とりあえず要望をお伝えすることに。今回は、設計さんが欠席されていることもあり比較的短時間で打ち合わせは終了。しかし、C社さんはいつやってきても自社の構造体を必ずと言っていいほど宣伝されていきます。「僕にはこれくらいしかプレゼンできませんので・・・」といわれるのですが、その言い方がまた控えめでついつい面白く聞いてしまいます。
なんだかんだで次回は洗濯物に関して何らかの変更をお願いしたプランを聞くことになりました。果てさてどうなるのやら・・・。
2007'12.02.Sun
これまたすごい・・・
木の家を見に行った帰り、近くでASJスタジオが開催する『未来をのぞく住宅展』へ足を伸ばしました。これはASJに参画している建築家さんたちの展示会で、今回も地元建築家を始め関西一円から様々な方がお見えになっていました。基本的には自分の作品をパネル展示していたり、立体模型を展示してあったりで、特に勧誘などはなく実に静かな展示会です。HMの住宅展示場とはまた違った雰囲気があります。
T川所長
も今回のイベントに参加されていましたが、滅多に見ることのできない他の建築家さんたちの作品も見せてもらおうと展示場をブラブラしていました。はっきり言って『すごい!』の一言です。感嘆するほかありません。どれも全く違った家で、同じものは一つとしてありません。風合いがにているということはあっても、それは建築家の個性なので、それがまたダイレクトにわかるからおもしろいです
木の家を見に行った帰り、近くでASJスタジオが開催する『未来をのぞく住宅展』へ足を伸ばしました。これはASJに参画している建築家さんたちの展示会で、今回も地元建築家を始め関西一円から様々な方がお見えになっていました。基本的には自分の作品をパネル展示していたり、立体模型を展示してあったりで、特に勧誘などはなく実に静かな展示会です。HMの住宅展示場とはまた違った雰囲気があります。
T川所長
も今回のイベントに参加されていましたが、滅多に見ることのできない他の建築家さんたちの作品も見せてもらおうと展示場をブラブラしていました。はっきり言って『すごい!』の一言です。感嘆するほかありません。どれも全く違った家で、同じものは一つとしてありません。風合いがにているということはあっても、それは建築家の個性なので、それがまたダイレクトにわかるからおもしろいです
2007'12.02.Sun
こりゃ〜凝ってます
何度かコンタクトを取っているT川所長
ですが、先生が設計しT建設さんが施工されたという木の家を見に行ってみないかというお誘いがお義母さんにあったようで、見に行くことにしました。
この木の家、T川所長のHPでも見ることができるのですがかなり本格的な作りのようです。天気がよいこの日、お義母さんを引き連れて出かけました。
何度かコンタクトを取っているT川所長
ですが、先生が設計しT建設さんが施工されたという木の家を見に行ってみないかというお誘いがお義母さんにあったようで、見に行くことにしました。この木の家、T川所長のHPでも見ることができるのですがかなり本格的な作りのようです。天気がよいこの日、お義母さんを引き連れて出かけました。
カレンダー
リンク
カテゴリー
最新コメント
[07/05 ゆめ]
[04/18 さっさー]
[04/17 CG render blog]
[12/22 スピーカー]
[12/21 magazinn55]
最新記事
最新トラックバック
プロフィール
HN:
さっさー
性別:
男性
ブログ内検索
アーカイブ
カウンター

